15230 Frankfurt (Oder), Wohnung zur Miete
Neubau — Einzigartige 2‑Raumwohnung mit Loggia
Neubau — Einzigartige 2‑Raumwohnung mit Loggia
15230 Frankfurt (Oder), Wohnung zur Miete
Kontaktdaten
-
NameVermietung der WOWI
-
FirmaWohnungswirtschaft Frankfurt (Oder) GmbH
-
AnschriftGroße Oderstraße 25 a
15230 Frankfurt (Oder) -
E-Mail
-
Telefon
Objektdaten
-
Objekt-ID2400/4
-
ObjekttypWohnung
-
AdresseGroße Oderstraße 25
15230 Frankfurt (Oder)
(Frankfurt (Oder) Zentrum) -
Etage2
-
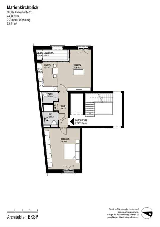
Wohnfläche ca.72,21 m²
-
Zimmer2
-
Balkone1
-
Baujahr2024
-
Kaution3.032,82 EUR
-
Kaltmiete1.010,94 EUR
-
Nebenkosten132,87 EUR
-
Heizkosten132,87 EUR
-
Warmmiete1.276,68 EUR (zzgl. Heizkosten)
Ausstattung / Merkmale
- ✓ Balkon
- ✓ Dusche
- ✓ Keller
- ✓ Personenaufzug
Energieausweis
-
EnergieausweistypBedarfsausweis
-
Gültig bis03-2035
-
Baujahr2024
-
PrimärenergieträgerFernwärme
-
Endenergiebedarf55,50 kWh/(m²·a)
-
EnergieeffizienzklasseB
Objektbeschreibung
Beschreibung
Die Wohnung verfügt über 2 großzügige Zimmer, ein Bad mit großer Dusche und eine Loggia mit geschütztem Abstellabteil. Die Böden in den Wohnräumen sind mit Echtholzparkett ausgestattet (fest verlegt), die Böden in den Nassbereichen (Bad und Abstellraum) sind gefliest. Im großen Wohnzimmer befindet sich der offene Küchenbereich und der Zugang zur Loggia. Das Bad bietet neben der geräumigen Dusche auch einen zusätzlichen Handtuchheizkörper und Ablageflächen über dem Waschtisch und dem WC. Im separaten Abstellraum finden Sie den Anschluss für die Waschmaschine. Die Wohnung wird komplett über eine Fußbodenheizung mit Wärme versorgt (Fernwärme, alle Räume individuell steuerbar). Bodentiefe Holz-Fenster in 3-fach-Isolierverglasung versorgen die Wohnung mit Tageslicht und sorgen für exzellenten Schallschutz und sehr gute Energiewerte. Diese lassen sich bei Bedarf elektrisch einzeln oder per Generalsteuerung im Flur mit einem Sicht- bzw. Sonnenschutz abschatten. Die Video-Türöffnungsanlage sorgt für Sicherheit und gewährt Ihrem Besuch Zutritt. Ein zur Wohnung gehöriger Kellerraum sowie ein Gemeinschaftskeller für Fahrräder, Kinderwagen etc. komplettieren das Angebot und sind auch per Aufzug im Untergeschoss erreichbar.
Ausstattung
Abstellraum mit Waschmaschinenanschluss, Aufzug, Bad Fußboden gefliest, Bad Nassbereich gefliest, Balkon/Loggia, Dusche, Dusche ebenerdig, Elektrische Beschattung (Textilscreens), Elektroherdanschluss, Fernheizung, Fußbodenheizung, Handtuchheizkörper, Hausreinigung durch DL, Keller, Parkett, saniert, Spülmaschinenanschluss, Stellplatz bei Verfügbarkeit möglich, Türsprechanlage mit Kamera, Waschmaschinenanschluss
Lage
Das Frankfurter Stadtzentrum befindet sich direkt an der Oder, dem Grenzfluss zum Nachbarland Polen. Ob Kultur pur, Erholung in herrlichen Parkanlagen, Kitas, die Universität, medizinische Versorgung oder vielfältige Einkaufsmöglichkeiten – kurze Wege ermöglichen schnelle Erreichbarkeit. Mit diversen Buslinien und Straßenbahnlinien ist man in Frankfurt (Oder) gut angebunden. Mit dem Regionalverkehr erreicht man in circa einer Stunde die Hauptstadt Berlin.












