15230 Frankfurt (Oder), Wohnung zur Miete
zentral Wohnen im modernen Neubau
zentral Wohnen im modernen Neubau
15230 Frankfurt (Oder), Wohnung zur Miete
Kontaktdaten
-
NameVermietung der WOWI
-
FirmaWohnungswirtschaft Frankfurt (Oder) GmbH
-
AnschriftGroße Oderstraße 25 a
15230 Frankfurt (Oder) -
E-Mail
-
Telefon
Objektdaten
-
Objekt-ID2400/30
-
ObjekttypWohnung
-
AdresseGroße Oderstraße 27
15230 Frankfurt (Oder)
(Frankfurt (Oder) Zentrum) -
Etage4
-
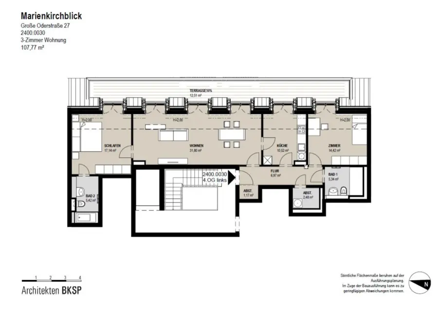
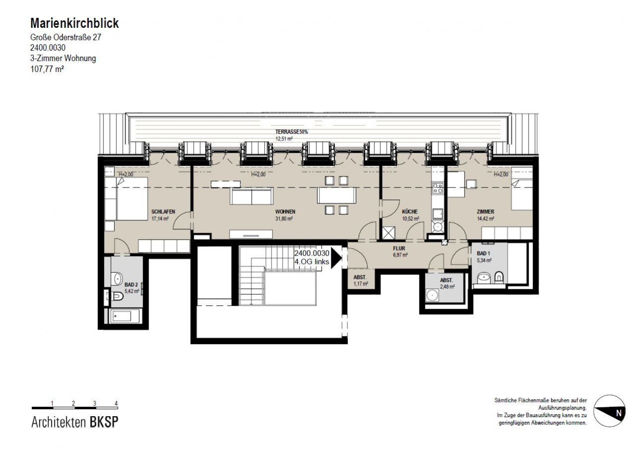
Wohnfläche ca.107,77 m²
-
Zimmer3
-
Balkone1
-
Baujahr2024
-
Kaution4.203,03 EUR
-
Kaltmiete1.401,01 EUR
-
Nebenkosten198,30 EUR
-
Heizkosten198,30 EUR
-
Warmmiete1.797,61 EUR (zzgl. Heizkosten)
Ausstattung / Merkmale
- ✓ Badewanne
- ✓ Balkon
- ✓ Dusche
- ✓ Keller
- ✓ Personenaufzug
Energieausweis
-
EnergieausweistypBedarfsausweis
-
Gültig bis03-2035
-
Baujahr2024
-
PrimärenergieträgerFernwärme
-
Endenergiebedarf55,50 kWh/(m²·a)
-
EnergieeffizienzklasseB
Objektbeschreibung
Beschreibung
Die großzügige Dachgeschosswohnung verfügt auf ca. 108 m² über 3 großzügige Zimmer, zwei Bäder (Badewanne und Dusche), eine Küche, einen separaten Abstellraum und eine große Terrasse. Die Böden in den Wohnräumen sind mit Echtholzparkett ausgestattet (fest verlegt), die Böden in den Nassbereichen (Bäder und Abstellraum) sind gefliest. Eines der Bäder ist en-suite von einem Schlafzimmer zu begehen. Die Dachterrasse ist von allen Wohnräumen und der Küche zu erreichen. Die Bäder bieten weiterhin auch einen zusätzlichen Handtuchheizkörper und Ablageflächen über dem Waschtisch und dem WC. Im separaten Abstellraum finden Sie den Anschluss für die Waschmaschine. Die Wohnung wird komplett über eine Fußbodenheizung mit Wärme versorgt (Fernwärme, alle Räume individuell steuerbar). Bodentiefe Holz-Fenster in 3-fach-Isolierverglasung versorgen die Wohnung mit Tageslicht und sorgen für exzellenten Schallschutz und sehr gute Energiewerte. Diese lassen sich bei Bedarf elektrisch einzeln oder per Generalsteuerung im Flur mit einem Sicht- bzw. Sonnenschutz abschatten. Mit ca. 3,70 m Deckenhöhe ergibt sich ein exklusives Raumgefühl. Die Video-Türöffnungsanlage sorgt für Sicherheit und gewährt Ihrem Besuch Zutritt. Ein zur Wohnung gehöriger Kellerraum sowie ein Gemeinschaftskeller für Fahrräder, Kinderwagen etc. komplettieren das Angebot und sind auch per Aufzug im Untergeschoss erreichbar.
Ausstattung
2 bzw. mehrere Bäder, Abstellraum mit Waschmaschinenanschluss, Aufzug, Bad Fußboden gefliest, Bad Nassbereich gefliest, Badewanne, Balkon/Loggia, Dusche, Dusche ebenerdig, Elektrische Beschattung (Textilscreens), Elektroherdanschluss, Fernheizung, Fußbodenheizung, Handtuchheizkörper, Hausreinigung durch DL, Keller, Küche mit Fenster, Parkett, saniert, Spülmaschinenanschluss, Stellplatz bei Verfügbarkeit möglich, Türsprechanlage mit Kamera, Waschmaschinenanschluss
Lage
Das Frankfurter Stadtzentrum befindet sich direkt an der Oder, dem Grenzfluss zum Nachbarland Polen. Ob Kultur pur, Erholung in herrlichen Parkanlagen, Kitas, die Universität, medizinische Versorgung oder vielfältige Einkaufsmöglichkeiten – kurze Wege ermöglichen schnelle Erreichbarkeit. Mit diversen Buslinien und Straßenbahnlinien ist man in Frankfurt (Oder) gut angebunden. Mit dem Regionalverkehr erreicht man in circa einer Stunde die Hauptstadt Berlin.






















